Версия для печати Версия для печати
Версия для печати
Проект бани ПБ-026Проект бани ПБ-024

Проект бани ПБ-025

Цена: 0 руб. Задайте вопрос

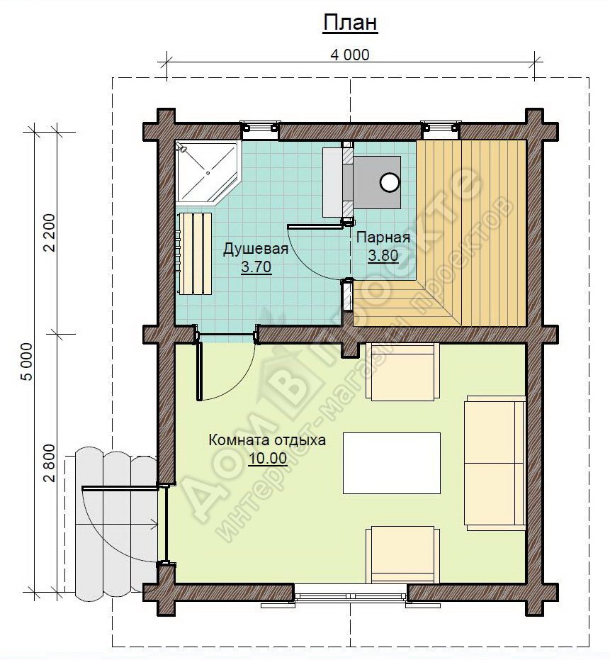
  Наведите мышкой на 3D модель и вращайте!    Габариты: 4 х 5 м
Если Вы не видите изображения ниже этой надписи установите QuickTime Player

УВЕЛИЧИТЬ

Площади:
Общая 17.5 м2
Жилая 10 м2
Застройки 23 м2
Планы:

Фасады и 3D планы:

АННОТАЦИЯ
Небольшая одноэтажная бревенчатая банька 4 x 5 м со всеми необходимыми помещениями: парная, душевая, комната отдыха. 
ОСНОВНЫЕ КОНСТРУКЦИИ И МАТЕРИАЛЫ
Фундамент Ленточный ж/б
Несущие стены Бревно диаметром 20-24 см
Внутренние перегородки Бревно диаметром 20-24 см
Перекрытия Силовой каркас с утеплителем - минераловатной плитой 150мм по пароизоляции, обшиты вагонкой и половой доской
Кровля Металлочерепица
Сколько стоит баньку построить?
Комплект из
оцилиндрованного бревна:
446 854р.
В стоимость строительства входит:
1. Фундамент ж.б. арм. лента
0.4x(0.4+0.5) Ширина x (Высота+Глубина)
2. Стеновой комплект сруба - 89.3 м2
3. Перекрытия - силовой каркас из деревянных балок - брус 100x200
4. Кровля - 36.6 м2, стропильная система, обрешетка, покрытие рубероид
5. Доставка до 30 км от МКАД
Комплект из
рубленого бревна:
367 261р.
Комплект из
профилированного бруса:
355 646р.
Комплект из
бруса:
298 773р.
Понравились цены?
Нажмите на кнопку "Задайте вопрос" (вверху рядом с названием проекта) и напишите в сообщении "интересует строительство бани" и мы в ответном письме дадим вам информацию о строительной компании, которая является нашим партнером, и подробные сметы на эту баню.

Проект временно НЕ ДОСТУПЕН


Задайте вопрос

Проект бани ПБ-025 Паспорт проекта 0 руб.

Проект бани ПБ-025 Раздел АС 0 руб.



{socbuttons}

{soccomments}